Yksipuoleinen kevyt ulokehylly (3000 mm): Optimaalinen ratkaisu pitkän tavaran varastointiin
Tämä yksipuoleinen, kevytrakenteinen ulokehylly on suunniteltu erityisesti teollisuuden, rakennustarvikeliikkeiden ja ammattirakentajien vaativiin tarpeisiin. Sen yksinkertainen mutta erittäin vankka teräsrakenne tekee pitkien materiaalien – kuten puutavaran ja putkien – järjestämisestä ja käsittelystä tehokasta ja turvallista.
Hyllystö on viimeistelty laadukkaalla jauhemaalauksella, joka antaa erinomaisen suojan korroosiota vastaan ja tekee siitä ihanteellisen valinnan niin sisä- kuin ulkokäyttöön. Hylly on suunniteltu asennettavaksi joko betoni- tai asfalttialustalle. Kaikki EAB:n ulokehyllyt on suunniteltu ja valmistettu Ruotsissa, ja ne täyttävät eurooppalaisen FEM 10.2.09 -standardin tiukat turvallisuusvaatimukset.
Tekniset tiedot ja mitat
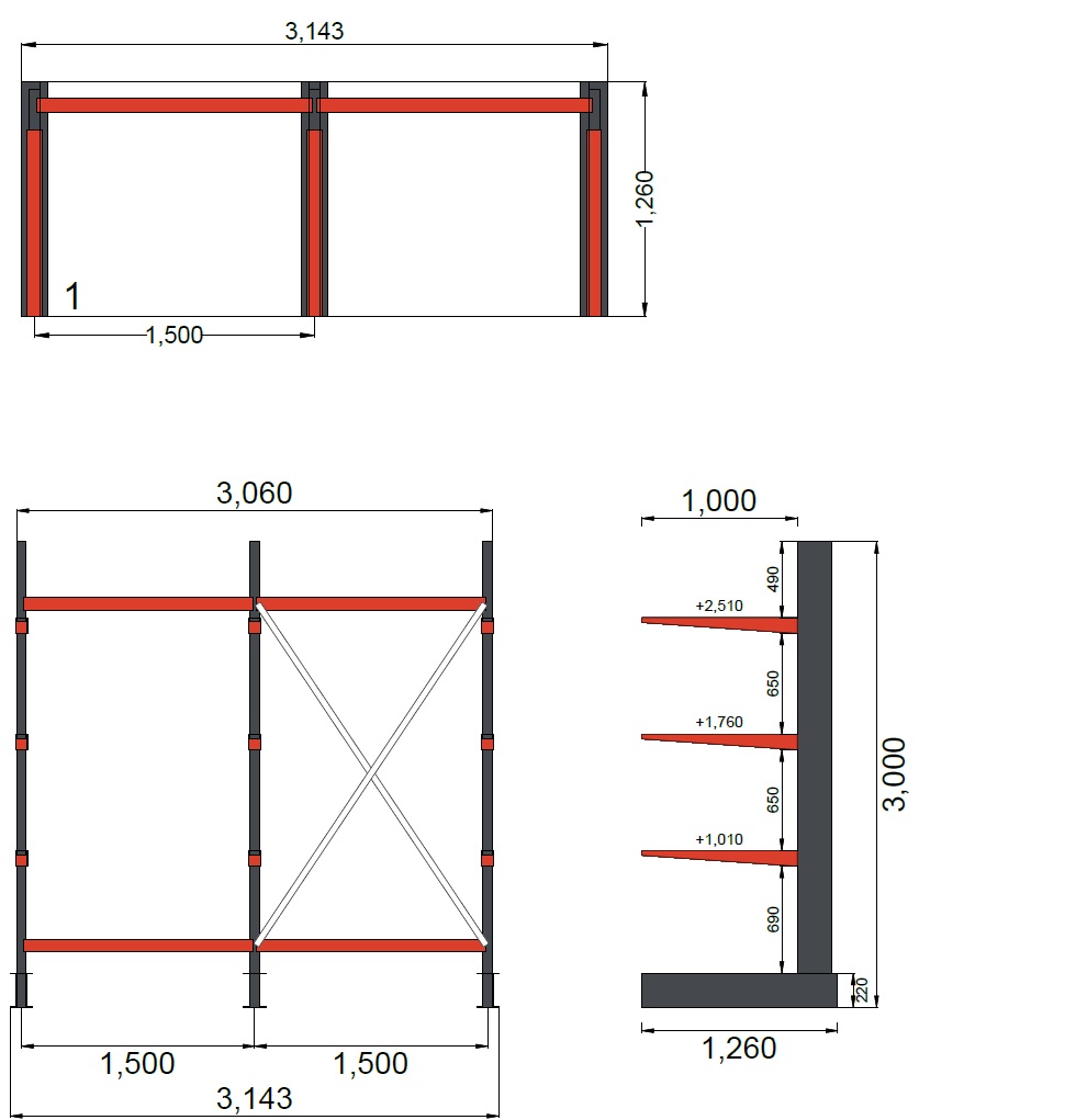
Korkeus: 3000 mm
Syvyys: 1260 mm
Leveys: 3143 mm (2×1500 mm väliköt)
Ulokkeen syvyys: 1000 mm
Välikköpituus: 1500 mm
Jalan korkeus: 220 mm
Kantavuus ja kuormitus
Maksimi kantavuus per pylväs: 1260 kg
Maksimi kantavuus kolmelle ulokkeelle: 783 kg
Huomioitavaa kantavuudesta: Ilmoitetut kantavuudet edellyttävät aina kuorman tasaista jakautumista ulokkeille asennusohjeiden mukaisesti (maksimiylitys pylväsväli/2).
Toimituksen sisältö
Kevyt ulokehylly toimitetaan täydellisenä asennussarjana, jonka osat ovat piirustuksen mukaiset. Asennusvalmis paketti sisältää:
Yksipuoleinen ulokehyllykokonaisuus sisältää:
3 kpl Pylväs 220×4×3000 mm
3 kpl Yksipuoleinen jalkaosa 1000 mm
9 kpl Uloke 1000 mm
1 kpl Välikkö ristituella 1500 mm
1 kpl Välikkö ilman ristitukea 1500 mm
9 kpl Tasauslevy 264×264×3 mm
15 kpl Betoniruuvi HUS4-H 8×85 mm
1 kg Asfalttiliima
1 kpl Kantavuustaulukko (tarraopaste) ja tarvittavat asennusohjeet
Valmistusmaa
Suunnittelu, tuotanto ja tuotekehitys Ruotsissa.


SOITA TAI VARAA AIKA.
VALMISTAUDU VARASTOSI MITOILLA JA POHJAKUVALLA.
ASIANTUNTIJAMME TEKEE
YHDESSÄ KANSSASI VALMIIN
HYLLYSUUNNITELMAN.
SAAT LAYOUTIN,
TARJOUKSEN JA
TOIMITUSAIKA-ARVION